上愛子字雷神3期(C棟)
交通アクセス
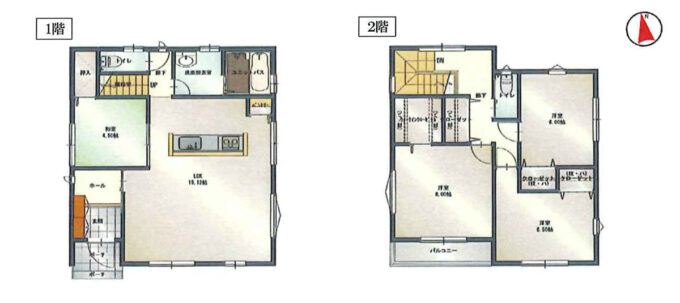
JR仙山線「愛子駅」徒歩20分平面図
案内図
概要
| 価格 | 3,280万円(税込) |
|---|---|
| 所在地 | 仙台市青葉区上愛子字雷神13-36、13-2(C棟) |
| 交通 | JR仙山線「愛子駅」徒歩20分 |
| 土地面積 | 192.23㎡ |
| 建物面積 | 1F:57.96㎡ 2F:52.99㎡ |
| 間取り | 4LDK |
| 都市計画 | 市街化区域 |
| 用途地域 | 第一種住居地域 |
| 地目 | 宅地 |
| 建ぺい率 | 60% |
| 容積率 | 200% |
| 構造 | 木造ガルバリウム鋼板葺2階建 |
| 接道状況 | 公道 南側6.12m |
| 建築確認番号 | 第R07確認建築仙台都市0729号 令和8年3月9日 |
| 築年月 | 令和8年12月 完成予定 |
| 設備・条件 | 上水道:公営、下水道:公共、電気:東北電力、ガス:オール電化 |
| 現状 | 工事中 |
| 取引形態 | 売主 |
| 情報公開日 | 2026年04月30日 |
| 次回更新予定日 | 2026年05月30日 |
仕様
TVモニター付インターフォン
浴室換気乾燥暖房機
温水洗浄便座(1F・2F)
ハンドシャワー付洗面台
洗面化粧台三面鏡
Low-e複層硝子
シックハウス対応等級区分☆4
ベタ基礎
カウンターキッチン
システムキッチン
オール電化
24時間換気システム
ユニットバス
10年保証
玄関収納
全室照明
食器洗い乾燥機
エコキュート追炊き付
床下収納1箇所(キッチン)
マイクロガード
物件情報について
- 地積、建物床面積、仕様に変更が生じる場合があります。
- 図面と現況が異なる場合には現況を優先します。
- 物件情報は最新のものをご提供させていただきますが、万一売約済の場合はご容赦ください。
